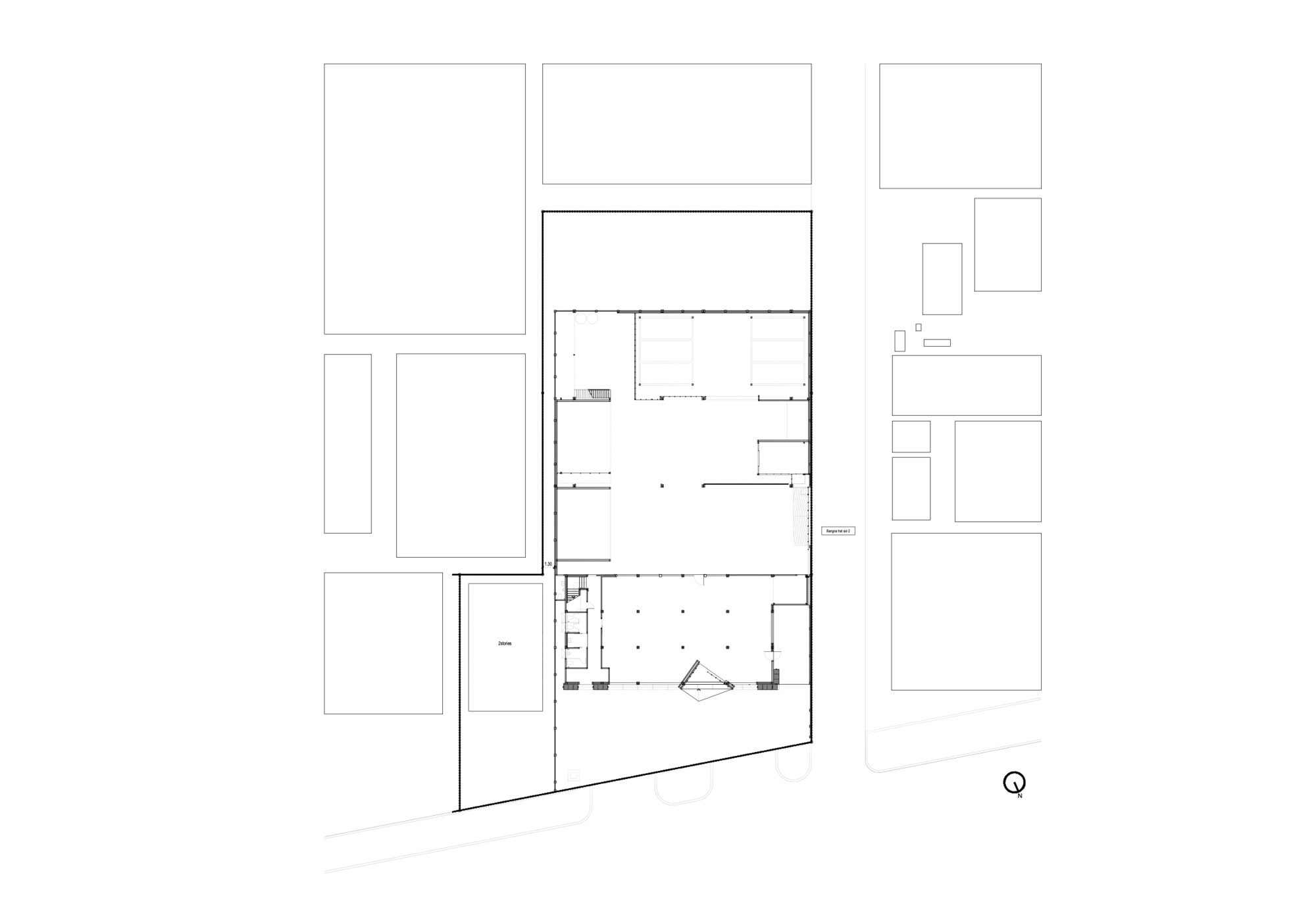
Archive Auto Service Facility is located in the Bangna area, primarily offering car washing, car detailing, and a hotel for vehicle storage. Since these services typically involve long wait times, a coffee shop has been designed as an additional activity for customers. This coffee shop is situated in the front of an old building, making it easily visible from the main road, while also connecting to the automotive service area in the back, allowing customers to enjoy coffee while watching the vehicle care services. The entire project involves renovating an old row house consisting of five rooms, as well as a service warehouse with a truss structure located at the back.
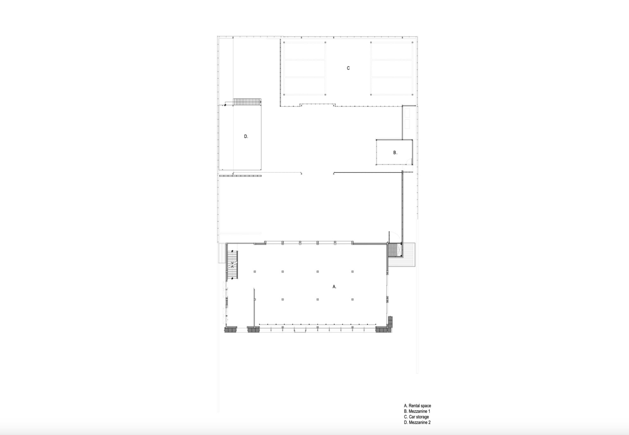
The automotive service area was previously a warehouse for storing car parts and a garage, which contributes to its high interior space and several mezzanine levels. The designer opted for a movable staircase to facilitate access to the mezzanine levels without needing multiple staircases, thereby reducing costs and saving space. This staircase can also be used for repairs on higher sections of the building. For the vehicle hotel, walls with semi-transparent properties were created to clearly delineate spaces without making the area feel cramped. The roof has been repaired, painted, and reinforced, with some sections modified to allow natural light during the day and provide natural ventilation.
In the front building, the coffee shop was designed under the concept of repurposing materials. Observing the use of several roller shutter doors in the old building, some of which were in good condition and featured interesting vented metal sections and were repurposed as the feature wall behind the coffee bar. The interior layout of the coffee shop was designed to minimize the perception of being a typical row house, with the main counter and entrance door angled to align with the building’s structure and the traffic flow from the main road. The second and third floors of this front building are intended for rental space.
The design of the building’s façade, which faces the busy Bangna-Trad Road, borrowed ideas and materials from the previous use of the building, as observed by the project owner before renovation. The interesting management of the former garage space for storing car parts, using hanging equipment made from wire mesh was carried forward by stacking these panels in two layers. This created a pattern that incorporates diagonal and vertical placements to provide transparency at the front of the building, while also featuring openings for ventilation and enhancing the building’s security without the need for a tall front fence. Additionally, the angled arrangement of the wire mesh panels allows for an overhanging eave, providing shade similar to an awning for the building.
Project Info
Architects: PHTAA Living Design
Country: Thailand, Khet Bang Na
Area: 600 m²
Year: 2024
Photographs: Kukkong Thirathomrongkiat
Lead Team: Ponwit Rattanatanatevilai






























