Designed by Tham & Videgård Arkitekter, The starting point is the direct relation to the dramatic archipelago landscape with the objective to offer within a simple frame – a platform – several diverse readings of the relation space-nature.
Conceived as a lightweight construction in wood and glass, this summerhouse is built in the outer Stockholm archipelago. The horizontal character of the black stained exterior relates to the verticals of tall grown pines and the mirrored views of the Baltic Sea.
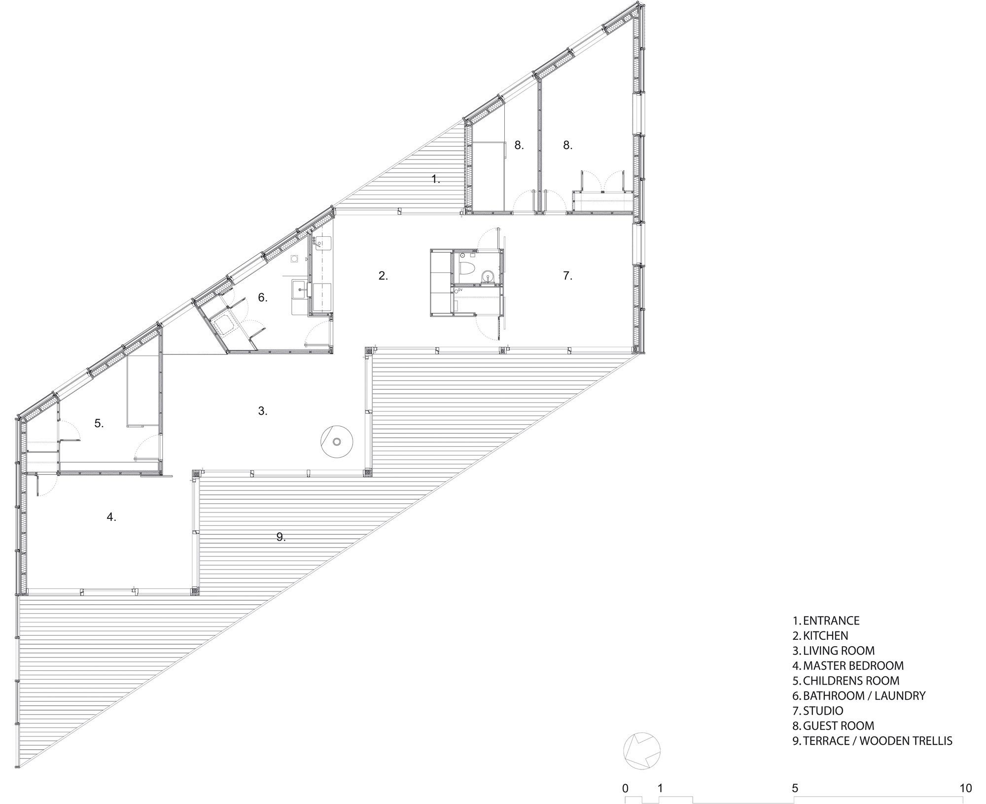
The geometry of the plan is generated by the specifics of the site, the house is fitted into the flat surface between two mountain rocks and turning simultaneously towards the sun in the south and frontally towards the sea in the west.
With the small rooms placed in the back, the social areas of the house stand out as an open platform crisscrossed by sliding glass. The zig-zagged layout also creates a series of outside places sheltered from the strong winds.
Project Info:
Architects: Tham & Videgård Arkitekter
Location: Sweden
Architects In Charge: Bolle Tham & Martin Videgård
Client: Private Site
Area: 3250.0 sqm
Project Year: 2006
Project Name: Archipelago House
All Images Courtesy Of Tham & Videgård Arkitekter


















