The AnDo Project—which literally translates to those two in Farsi—is an attempt to create new types of residence in infill plots. By freeing the circulation and intermixing it with the open spaces of the terrace, the entrance, and the yard, the two units in each level have been turned into a vibrant yet peaceful residential complex, with each unit maintaining its independence from the other while participating in a perpetual dance with the help of the playful stairway that joins the pair. The two synchronous masses and the stairway that seems stuck in between create variegated spatial sequences and united with their open spaces like a three-dimensional promenade.
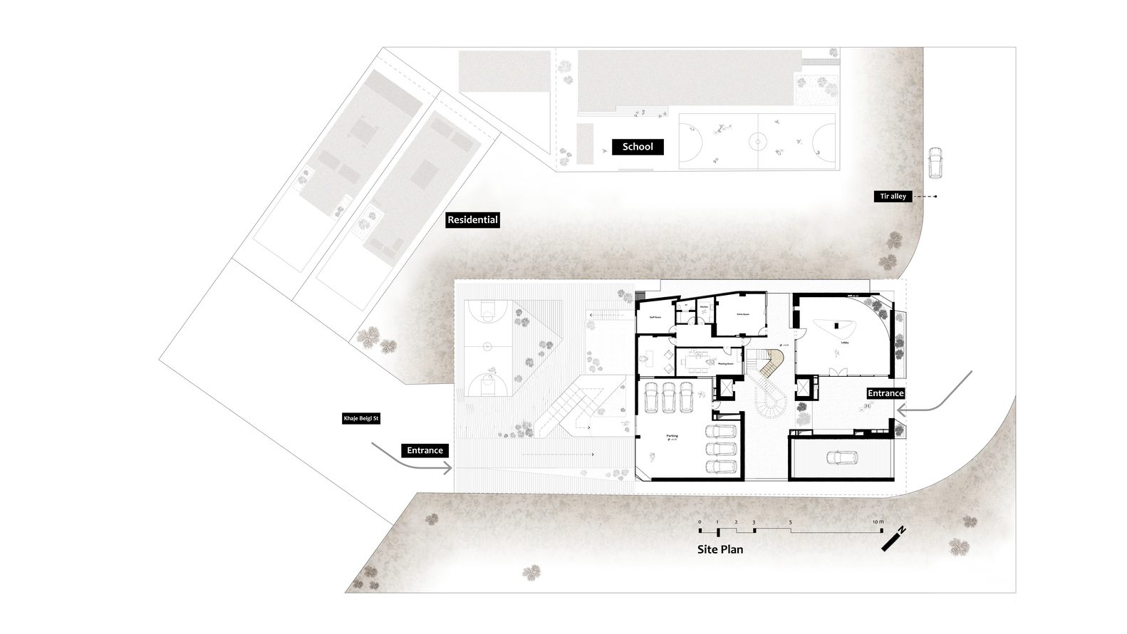
AnDo stands on a site in which spatial values vary greatly from one side to the other. This problem of course affects the plans of the project both regarding its urban aspects and its interior organization. From one side the project neighbors a school, and from its mirroring side it opens to an urban landscape. Thus, the Northern façade which faces the school is more closed in nature, possessing the minimum number of openings mostly resulted from cuts in the form. Conversely, the Southern façade has a more porous character due to the vastness of the view before it: the form has tried to respond to the viewer’s need to gaze at the sight.
The project has endeavored to incorporate independent yet complementary elements which engage in an everlasting back-and-forth. Their independence aids both in maintaining porosity and in keeping its ‘villa-like’ essence and nature. It also helps the two units in each level to stand separately. Hence, no two units are identical in their design, yet they are inspired by the same formal language and spatial qualities.
The spatial diagrams and the formal sections of AnDo come to exhibit at once a sense of dynamicity and vitality while also promising a pleasant residential experience, a matter which has also found its way in the materiality of the project. Following the great and long-lived tradition of brick-making in Iran, we attempted a long experimentation with color composition in the project by employing multicolored mud from different sources from the nearby hills. Ultimately, a hatch of bricks was created that enriched form and space, kept ties with the history of the material in the architecture of country, and gifted its guests with the warmth of the life lived in the homeland of earth architecture. It offers a kind of familiarity and strangeness at the same time.
Project Info:
-
Architects: NextOffice
- Country: Tehran, Iran
- Area: 2611 m²
- Year: 2024
-
Photographs: Neel Studio, Parham Taghioff, Ehsan Hajirasouliha
-
Manufacturers: Khorasan, Namachin Brick
-
Mechanical Engineering: Bahram Eksiri
-
Electrical engineering: Amirhossein Azmayesh
-
Structural Design: Vahid Gharakhaninia
-
Construction Management: Nexa Line
-
Design Team: Alireza Taghaboni, Ebrahim Roostaee, Elnaz Kharaghani, Ali Ghods, Mohammadreza Gholami, Mehran Motamedi, Hoodad Zoroufchiyan, Gelare Geranseresht, Negar Mansouri, Amir Pourmohmmad, Sattar Ganjalipour, Sara Tashayoei, Simin Tavajoh, Ali Maleki, Masoud Soufiani, Peyman Nozari, Golriz Hamidi, Asal Karami, Ehsan Ahani, Saba Salehi, Dorsa Sadeghi























