Amaya Apartment | Ventura Arquitectos

Amaya Apartment, Based on a minimalist architectural style that combines comfort with ecological sustainability, Amaya is a luxury project designed that has the objective to provide an experience of constant connection to the natural environment of the Maya Riviera. This project is inspired by the idea of houses in a village, in which every unit is able to enjoy personal independence due to the sensation of permeability and continuous connection with the outdoors and the exuberant tropical vegetation of Tulum.

© Fernando Alda1

© Fernando Alda

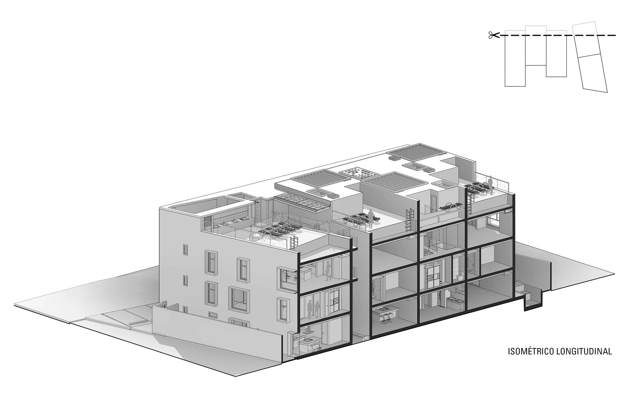
The concept and distribution are based on ten superimposed elements that always respond to two situations within the project, an interior view (common areas) and an exterior view (the environment), allowing for visual fluidity between the interior and exterior spaces, taking into account the privacy of the inhabitants.

© Fernando Alda2

© Fernando Alda

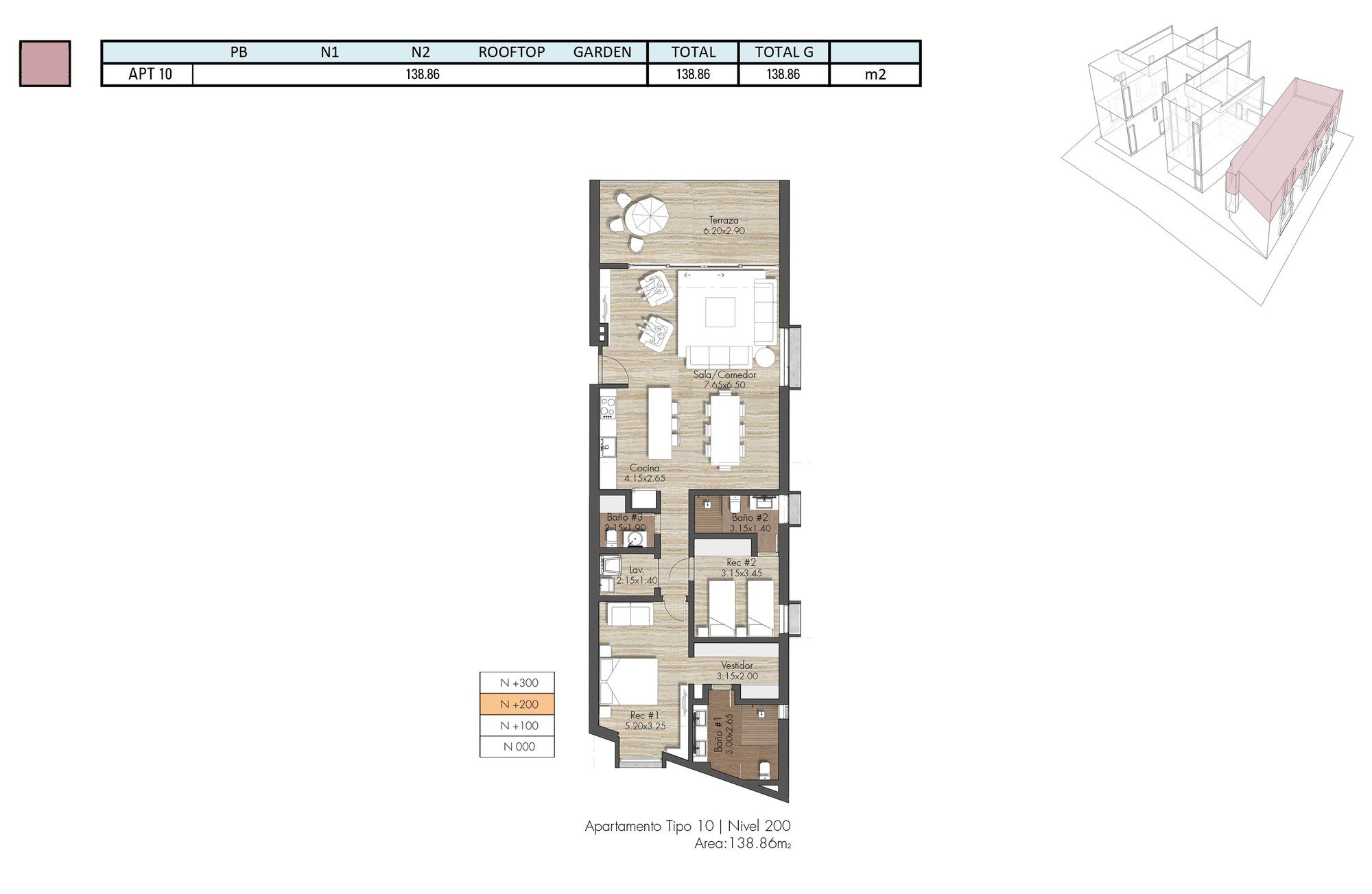
Each unit possesses a specific positioning in relation to the whole, which generates in each one of them a different form and offers, including single units as well as duplex and triplex. The project presents a scheme of 10 units in four levels that range from 72 m2 to 292 m2. This includes 5 units in one level, three duplexes, and two triplexes, and depending on each unit either the patio or terraces with pools or private jacuzzis will be available for use and enjoyment.

© Fernando Alda3

© Fernando Alda

The access lobby is a space that has quadruple height and a water mirror, as well as several indirect light entrances in the top deck. This is the center of the project, and it was born with the idea of simulating a lagoon or a freshwater well, which are typical in the region. The rooftop serves as a complement to the private amenities. In it, there is a rooftop pool, a tanning deck, and a barbecue area. With the intention to blend with its surroundings, the complex uses natural materials that are typical of the local architecture, such as wood, rock, and cement.

Project Info
Architects: Ventura Arquitectos
Country: Mexico, Tulum
Area: 1790 m²
Year: 2019
Photographs: Fernando Alda

Ventura Arquitectos
Arch2O.com
Logo