Al Jazeera Network Studio Building | Veech X Veech

Al Jazeera Network Studio Building

Following the launch of the broadcast facilities VXV designed for Al Jazeera Media Network in London’s landmark ‘Shard’ building, VXV were commissioned to design new facilities at the network’s headquarters in Doha. The new Network Studio building and Arabic Newsroom studio were built to commemorate the network’s 20-year anniversary in November 2016. Al Jazeera became one of the industry’s most influential multichannel networks worldwide, reaching more than 310 million viewers in over 100 countries.

Photography by © Hufton + Crow

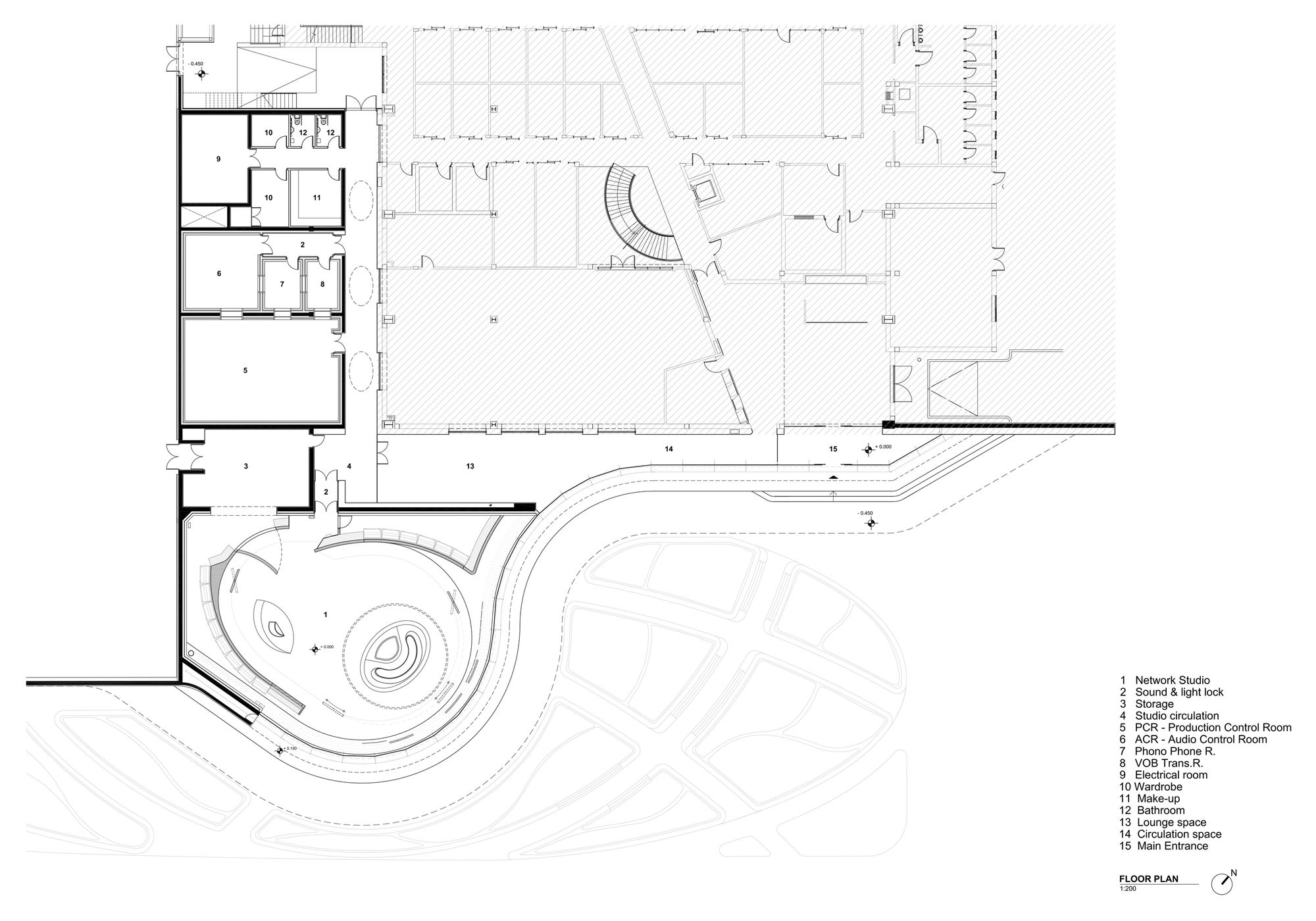
Al Jazeera Network Studio Building VXV’s new design was conceived as a landmark structure annexed to Al Jazeera’s pre-existing headquarters. The new development contains 1,650m² of studio space and support areas, with 7,450m² of landscaped public space to be realized in 2018. Shaded by a free-standing canopy cantilevering from a 36m lateral structural support, the open-plan design eliminates walls, partitions, and columns to provide uninterrupted views through the studios and public areas.

Photography by © Hufton + Crow

Al Jazeera Network Studio Situated at the core of the new building, the 400m² studio features 360º panoramas throughout the studio and exterior walls. The broadcast studio design goes far beyond conventional ‘black box’ sets, making the vistas seen through the glass facade part of the newsroom’s identity. Polarization filter panels balance the natural light, while integrated LED lighting, imaging technologies, immersive graphics and Augmented Reality add high-definition digital content to the broadcasts. The architecture is responsive, reconfiguring into a range of sets with distinct program identities. VXV created interior features that reflect the curves and asymmetry of the calligraphy used in the network’s logo, which subtly reinforces the Al Jazeera brand.

Photography by © Hufton + Crow

Al Jazeera Arabic Newsroom This ground-breaking hybrid space comprises a broadcast studio and production workplace galleries that provide egress to other parts of the site. The 1,100m² studio contains three individual sets adjacent to open-plan areas with space for 100 workstations. The architecture contains 3D immersive graphics and responsive LED surfaces that reconfigure lighting levels and color tones as new segments are broadcast. Other technologies capture contextual metadata collected during newsgathering and synchronize it with on-screen graphics and video clips integrated into the main 35m video wall installation.

These projects provide a compelling new vision for how architecture, studio design, broadcast media and digital technologies can make production and distribution faster, responsive and more efficient.

Photography by © Hufton + Crow

Project Info
Architects: Veech X Veech
Location: Doha, Qatar
Area: 1650.0 m2
Year: 2016
Type: offices
Photographs: Hufton + Crow

Veech X Veech
Arch2O.com
Logo
Send this to a friend