Acha Housing Units located in the Mariano Acha Street, represents an investigation developed throughout theprojectabout two themes of great importance for us when the opportunity of operating on traditional lots in the city appears, implying a collective housing program.
These themes are: the revision of the latent possibilities of the lots between party walls, and the material expression of the buildings.
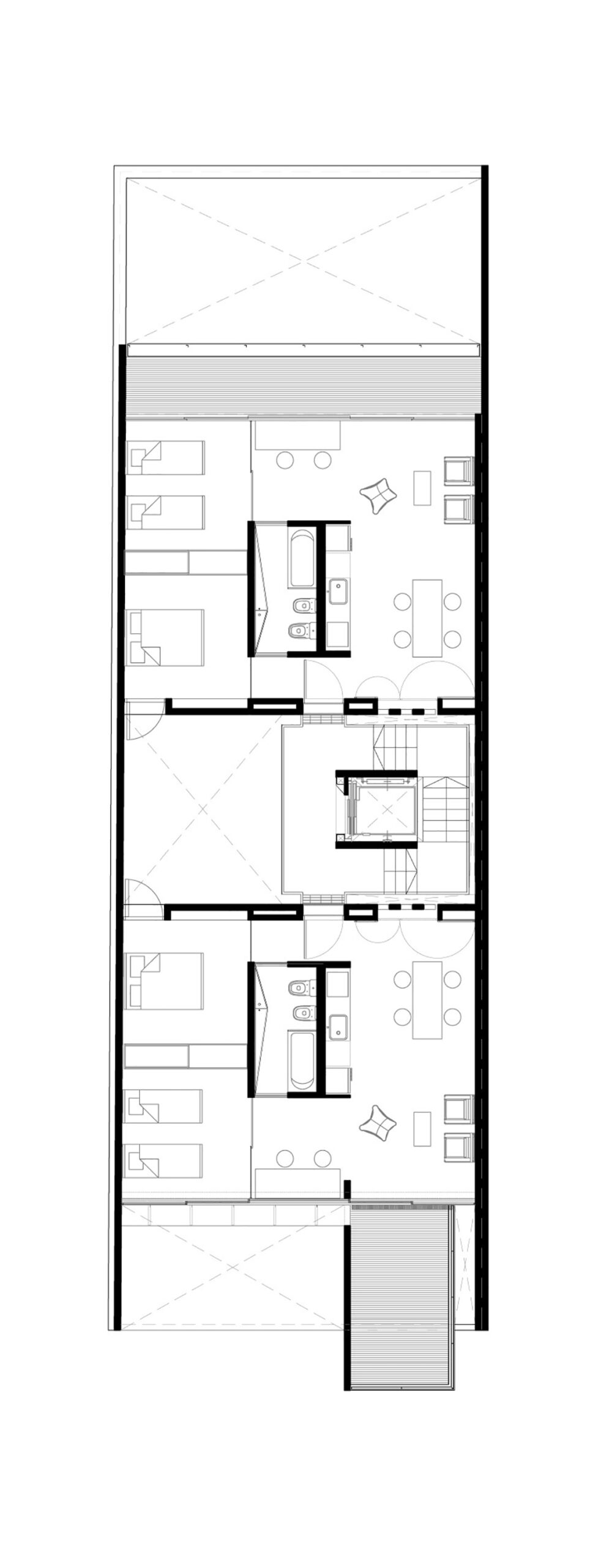
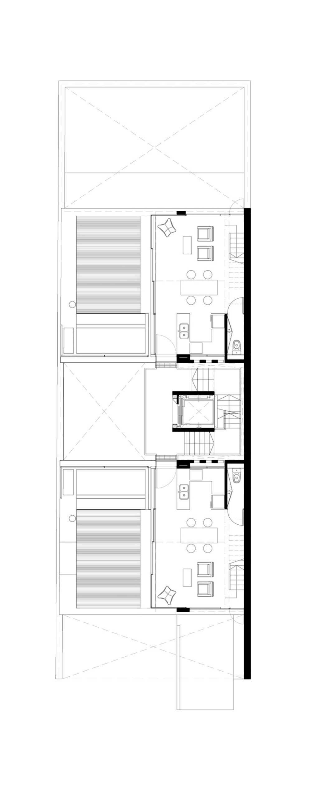
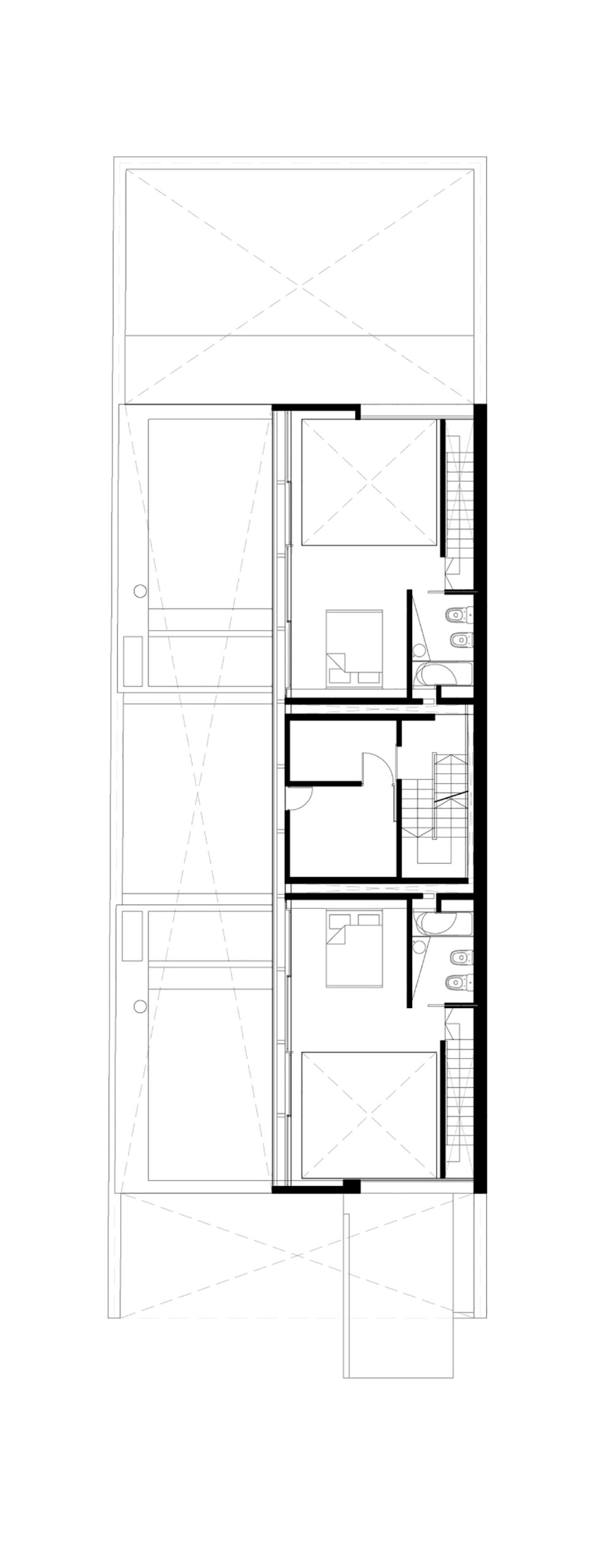
The volume of the building, from the third storey upward, rotates the traditional lot’s logic of Buenos Aires, giving place to a lateral façade, which coincides with the best orientation and views, taking advantage of the lower heights of the neighboring buildings and the presence of the Zapiola square.
The building combines different housing typologies that refer to distinct urban ways of inhabiting; from more introspective units, to flexible units that admit uses apart from the traditional use of inhabitation, and units with large places linked to life with more outdoor connection.
The Acha Housing Building is a new chapter that intends to contribute to the revision on the extense problem of housing buildings in cities with an increasing density.
Project Info
Architects: MONOBLOCK
Country: Argentina, Buenos Aires
Area: 603 m²
Year: 2013
Photographs:Javier Agustín Rojas
Monoblock Team: Marcos Amadeo, Fernando Cynowiec Paez, Juan Granara, Adrián Russo, Alexis Schachter, Osvaldo Cheula, Martin Mayan, Marina Mazzocchi.
Collaborator: Juan Pita



























Madeline Brooks is a Projects Editor at Arch2O, where she has been shaping and refining architectural content since March 2024. With over a decade of experience in editorial work, she has curated, revised, and published an array of projects covering architecture, urbanism, and public space design. A graduate of the Harvard University Graduate School of Design, Madeline brings a strong academic foundation and a discerning editorial eye to each piece she oversees. Since joining Arch2O, she has played a pivotal role in shaping the platform’s editorial direction, with a focus on sustainability, social relevance, and cutting-edge design. Madeline excels at translating complex architectural ideas into clear, engaging stories that resonate with both industry professionals and general readers. She works closely with architects, designers, and global contributors to ensure every project is presented with clarity, depth, and compelling visual narrative. Her editorial leadership continues to elevate Arch2O’s role in global architectural dialogue.





