Marcel Sembat High School Extension, The rehabilitation + extension of the Marcel Sembat high school in Sotteville lès Rouen is one of strong visual identity which is created from programmatic necessity. Large workshop spaces with high ceilings and technical work surfaces were required for technical education about motors and vehicle mechanics.
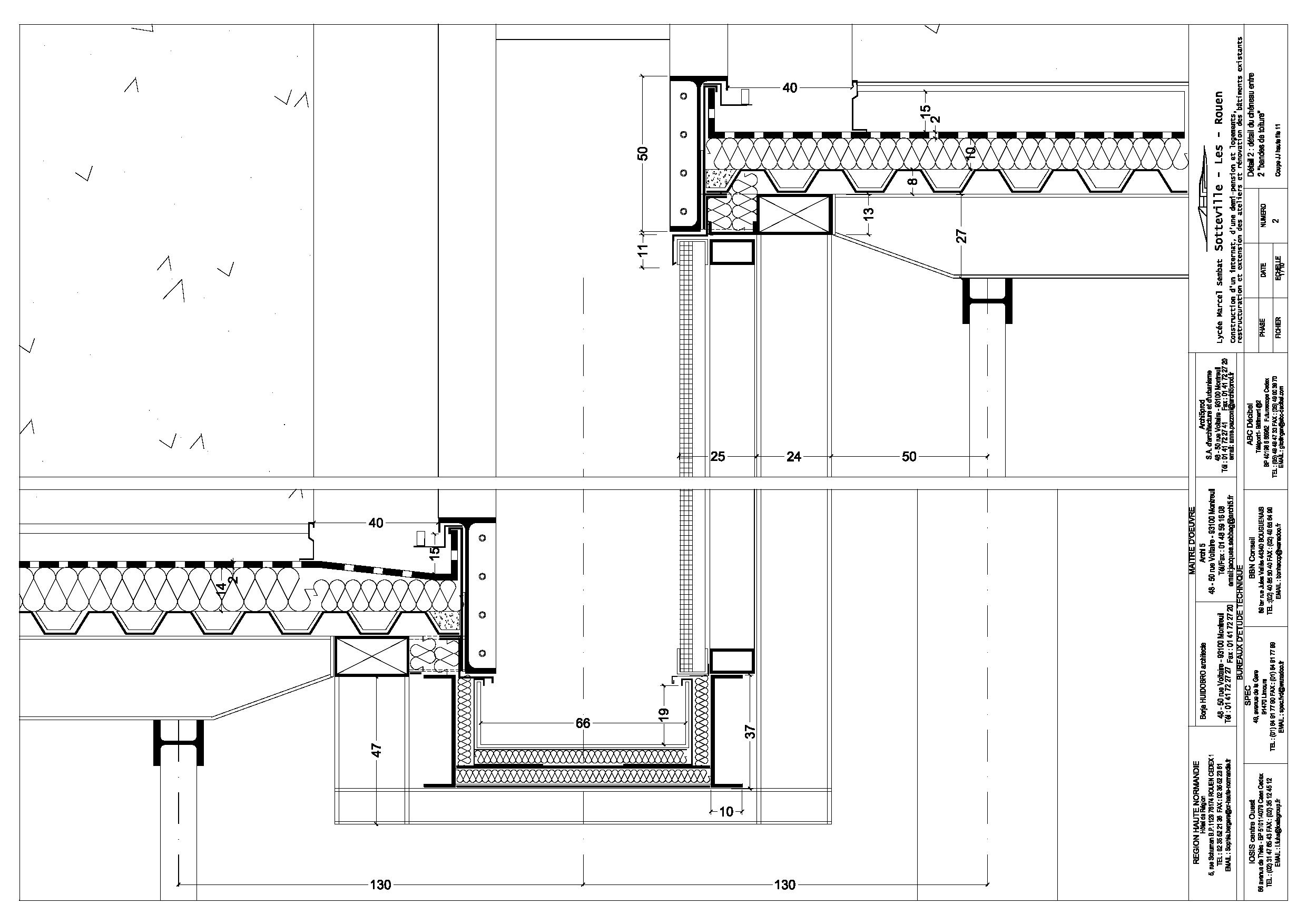
Rather than typical warehouse construction, the architects archi5 along with B. Huidobro, created a series of flowing green roofs which hold vast spaces below them and at times swoop to ground, creating internal courtyards which act as skylights to the surrounding spaces. These roofs exist as a seeming extension of the park neighboring the school.
The building gives way to a street which passes through the school, creating a large plaza in front of the new expansion. These features are tied to the interior through the usage of glass and translucent polycarbonate on the facades.
Project info:
Architects: B Huidobro, archi5
Country: France, Sotteville-lès-Rouen
Area: 12764 m²
Year: 2011
Photographs: Thomas Jorion


















Tags: 2011archi5B HuidobroEducationFranceGalleryGlassMarcel Sembat High School ExtensionSotteville-lès-RouenSteelThomas Jorion
Jovana Milovic is a Serbian architect whose early contributions to Arch2O showcased her innovative approach to design and sustainability. Graduating with a master's degree in architecture, her thesis on a multifunctional sports arena emphasized sustainable principles and environmental consciousness. Beyond architecture, Jovana's creative pursuits include photography, graphic design, and crafting handmade jewelry, reflecting her multifaceted artistic vision. Her work at Arch2O highlighted her commitment to blending functionality with aesthetic appeal, leaving a lasting impact on the architectural community.
