The Veilige Veste, meaning ‘Safe Fortress’ is a refuge for victims of human trafficking, or contemporary slavery. It is located in Leeuwarden, Friesland. Designed by the Dutch firm KAW, it is a refurbishing of a structure which began its life as a police station. The new faceted exterior acts as both a sheltering screen and as a means for further expansion. Beatrice Montesano of KAW states that unlike refuges ‘tucked away in anonymous back alleys,’ the facade of the Veilige Veste has ‘a subtle gleam that interacts with its environment.’
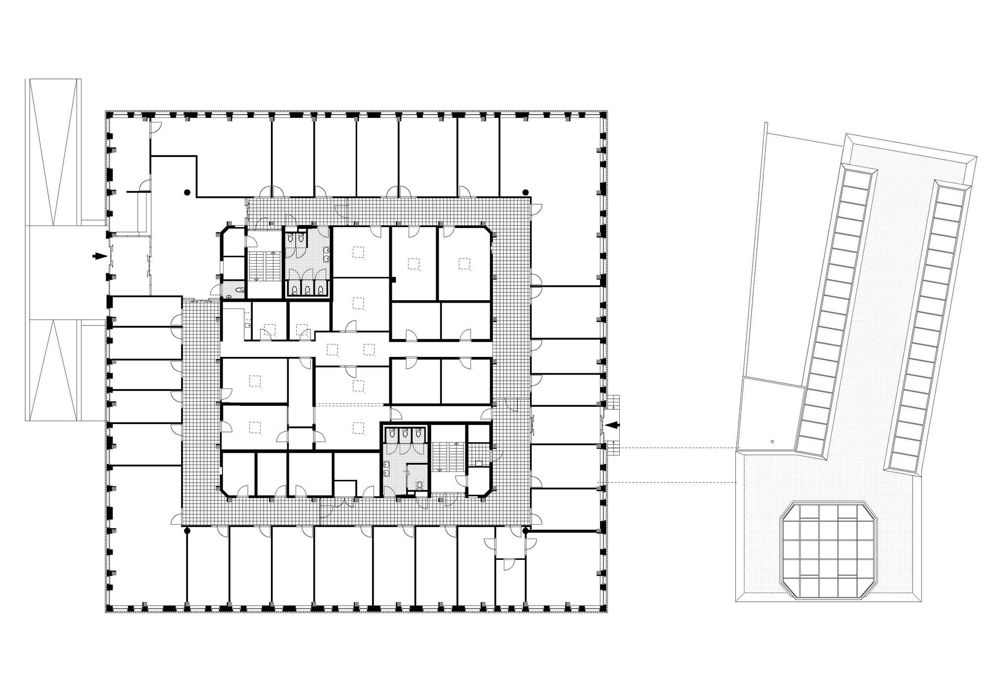
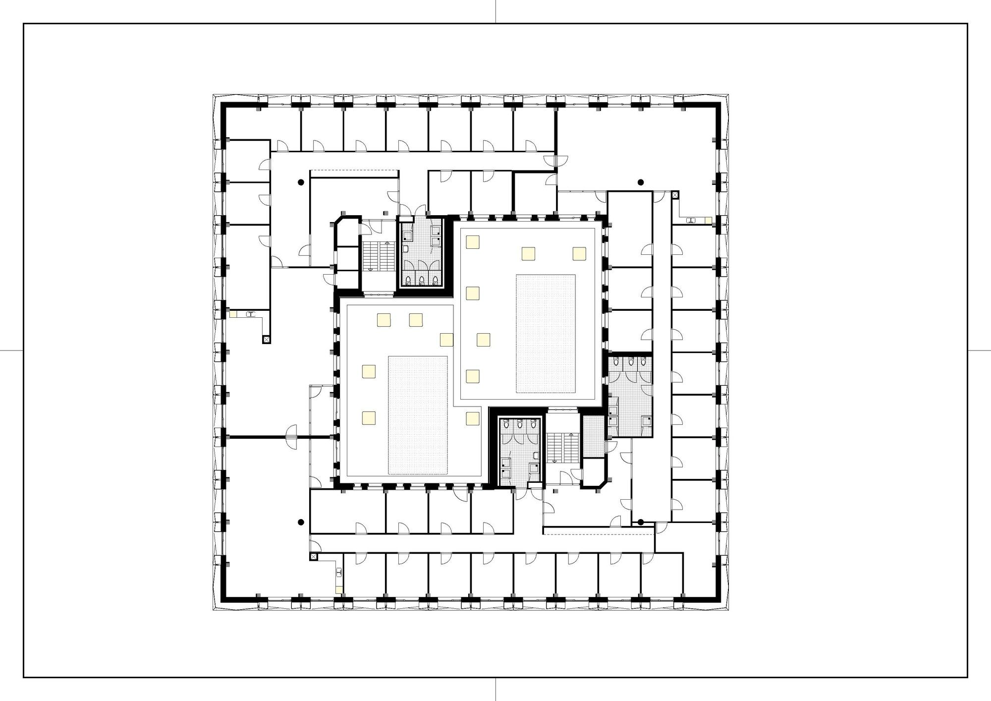
The first floor is home to offices, meeting rooms and treatment facilities. On the second, divided into six unique groups, are bedrooms and livings spaces for 48 girls. These rooms surround a roof terrace which exists as a protected outdoor space for the girls to use without having to leave the safety of the building. Montesano discribes this space in terms of a patio, saying:
A patio in Italy has a very important function,” said Montesano. “That is where the family comes together, where you relax, where you find tranquillity in a busy city. The atmosphere in the patio is always completely different from outside the building; here you sense a much more warm and intimate atmosphere.
Below is a statement by the architects describing the environmental achievements of Vielige Veste, which stand alongside its social achievements.
Massive Energy Reduction through Passive House
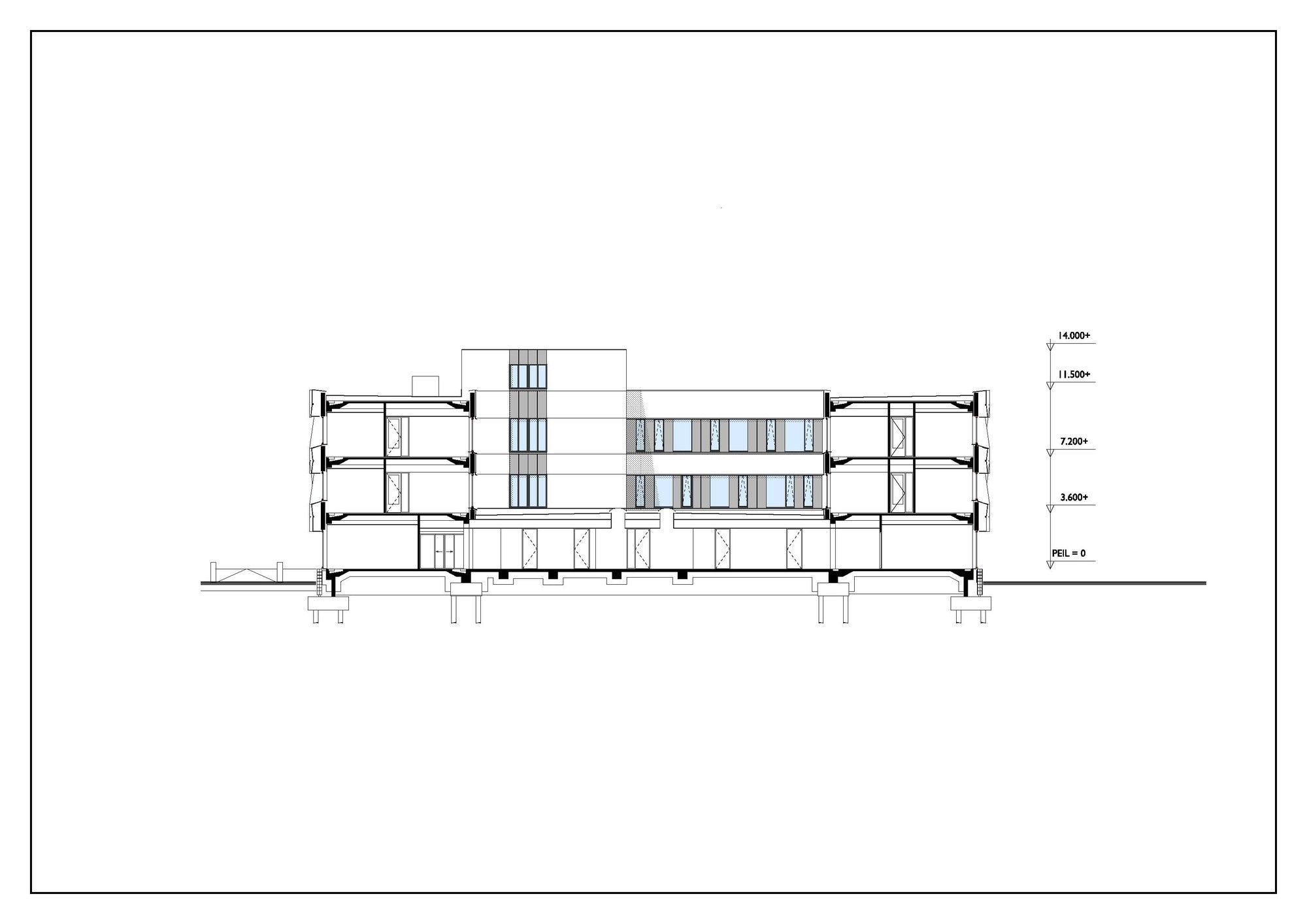
What is revolutionary about the ‘Veilige Veste’, is that this is the first large office block in the Netherlands to be renovated according to the Passive House standard. ‘Passive House’ is a standard for energy efficiency in a building, reducing its ecological footprint. It results in ultra-low energy buildings that require little energy for space heating or cooling. In this case, the fact that the former police stations’ substructure was placed outside the building, meant an enormous energy abuser to be dealt with.”]
The substructure created a thermal bridge that works exactly like a tunnel sucking in the cold outside air. By wrapping the building with the diamond-cut square panels, the substructure is now within the building and the whole building is covered by a thick layer of insulation. At some points, the façade is over 3 feet thicker now. Thanks to optimal insulation, draft proofing and the use of very little, highly energy-efficient equipment, the ‘Veilige Veste’ consumes exceptionally little power.




















Tags: BridgeEnvironmentGallery
Matt Davis is a Virginia Tech graduate and one of the founding editors behind Arch2O. Launching the platform in mid‑2012 alongside fellow Hokies, he helped shape its identity as an international hub for design innovation and critical dialogue . With a foundation in architectural education and a passion for uncovering unconventional design approaches, Matt has contributed significantly—both editorially and strategically—to Arch2O’s growth, ensuring that emerging architects, academics, and creatives have a space to question, explore, and elevate the built environment.





