78 Corlett Drive Building | Daffonchio and Associates

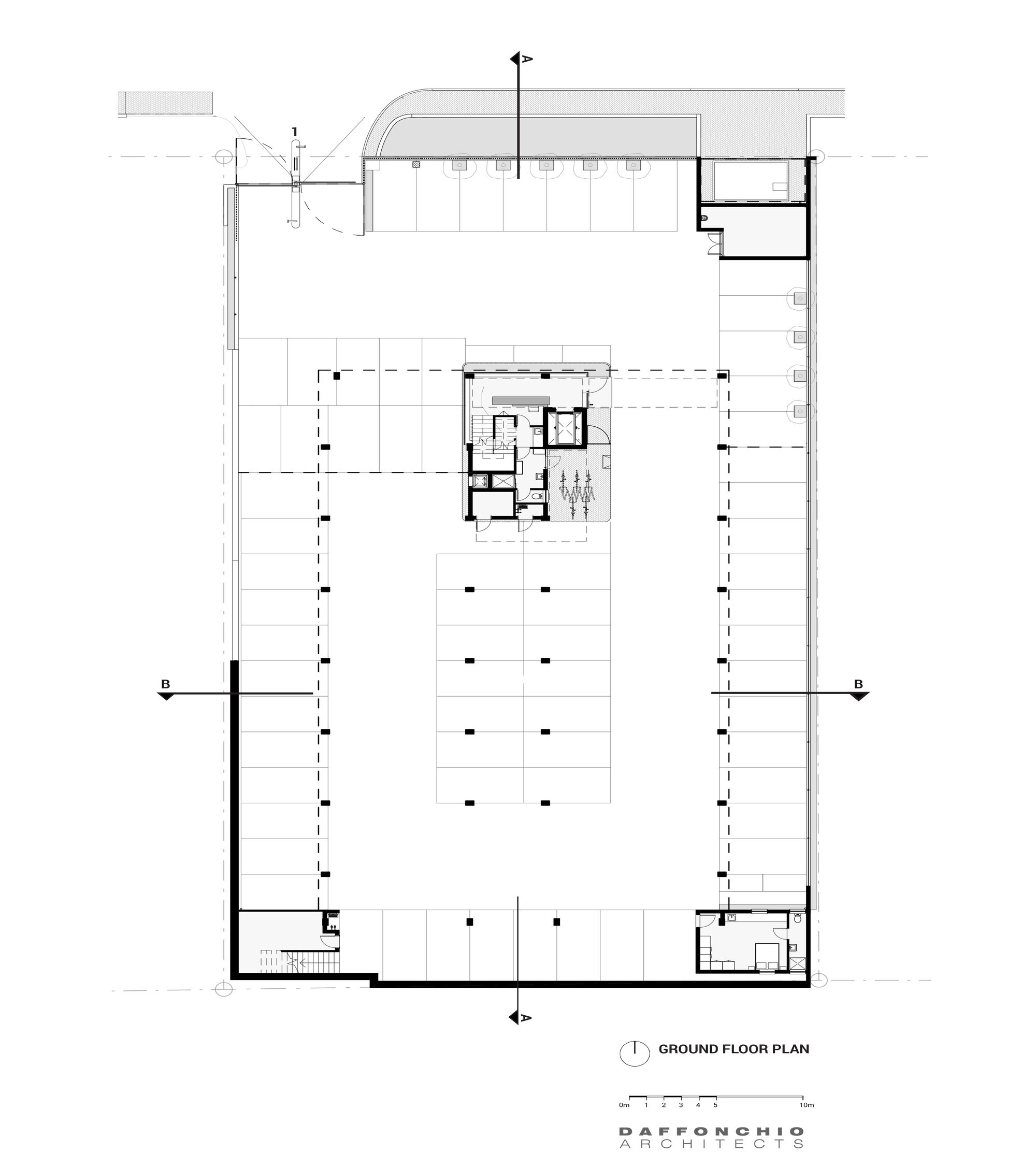
Designed by Daffonchio and Associates, By setting ambitious targets for most sustainable construction practices – and backed by Legaro Properties, a client that firmly believes in fundamentally changing the way buildings in South Africa are created, 78 Corlett demonstrates sector leadership in considering context, environment and occupant wellbeing – redefining the way people work and experience their built environment. 78 Corlett Drive is a new office development located on a brownfields site in the heart of Melrose North, Johannesburg. The project is leading the local green building sector into a new phase of evolution by achieving a Net Zero Carbon Level 1 Certification as well as a World Leadership 6-Star Green Star Office v1.1 Design Certification. These accolades have led 78 Corlett Drive to be awarded the Highest Rated Building Award for 2018, presented by the Green Building Council for South Africa (GBCSA). The GBCSA Net Zero Certification awards projects which go beyond the partial reductions recognized in the current GBCSA tools, and have taken initiative to reach the endpoint of completely neutralizing their environmental impact. The building’s design incorporates strong minimalist geometries with a simplified rectilinear floor plate, elevated on columns to provide sheltered tenant parking. The building gently interfaces with the ground plane through a glass-fronted lobby, housing the reception concierge and main circulation core.

photography by © Adam Letch

Elevated above is an array of fixed modular shading louvers acting as both a dynamic façade treatment as well as a highly efficient passive shading system. This was achieved through an interconnected process with lighting & façade specialists as well as advanced modeling software. The result is an iconic street presence which protects the building occupants from the harsh summer sun whilst ensuring an almost net-zero wastage through a modular aluminum-clad construction method. Sliding shutters along the adjacent facades creates an ever-changing aesthetic, affording occupants the ability to adjust the amount of natural light, heat, and glare that can enter their space.

The extension of architecture into smart urbanism is incorporated into the projects fundamental planning. The incentive to utilize electric cars is promoted by providing dedicated parking bays, complete with electric car charging stations, powered by a high-performance solar array that crowns the building. The solar array has an annual output of 92 000 kWh and will tie directly into the grid. The building actively promotes cycling to and from work by including safe and sheltered bicycle storage racks, together with a cyclist’s bathroom & changing facility. With the building located less than 1 kilometer from 6 major bus transit stops as well as numerous other taxi drop-off points, it is uniquely positioned to seamlessly integrate alternative transportation strategies into Johannesburg’s existing infrastructure.

photography by © Adam Letch

Project Info:
Architects: Daffonchio and Associates
Location: 78 Corlett Dr, Birnam, Johannesburg, 2196, South Africa
Lead Architect: Enrico Daffonchio
Area: 785.0 m2
Project Year: 2018
Photographs: Adam Letch
Project Name: 78 Corlett Drive Building

Enrico Daffonchio
Arch2O.com
Logo