7 ECO LOFT | José María de Lapuerta + Paloma Campo
7 ECO LOFT is a new model of mixed residential use, with an innovative approach in the context of Spanish economic crisis, covering the existent demand in the housing market.
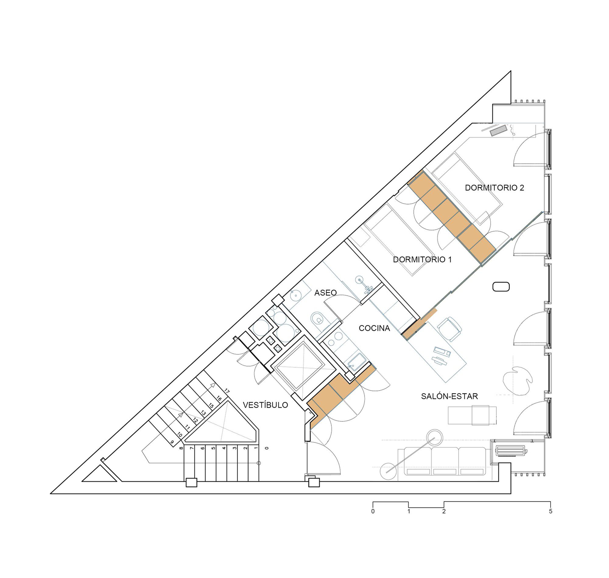
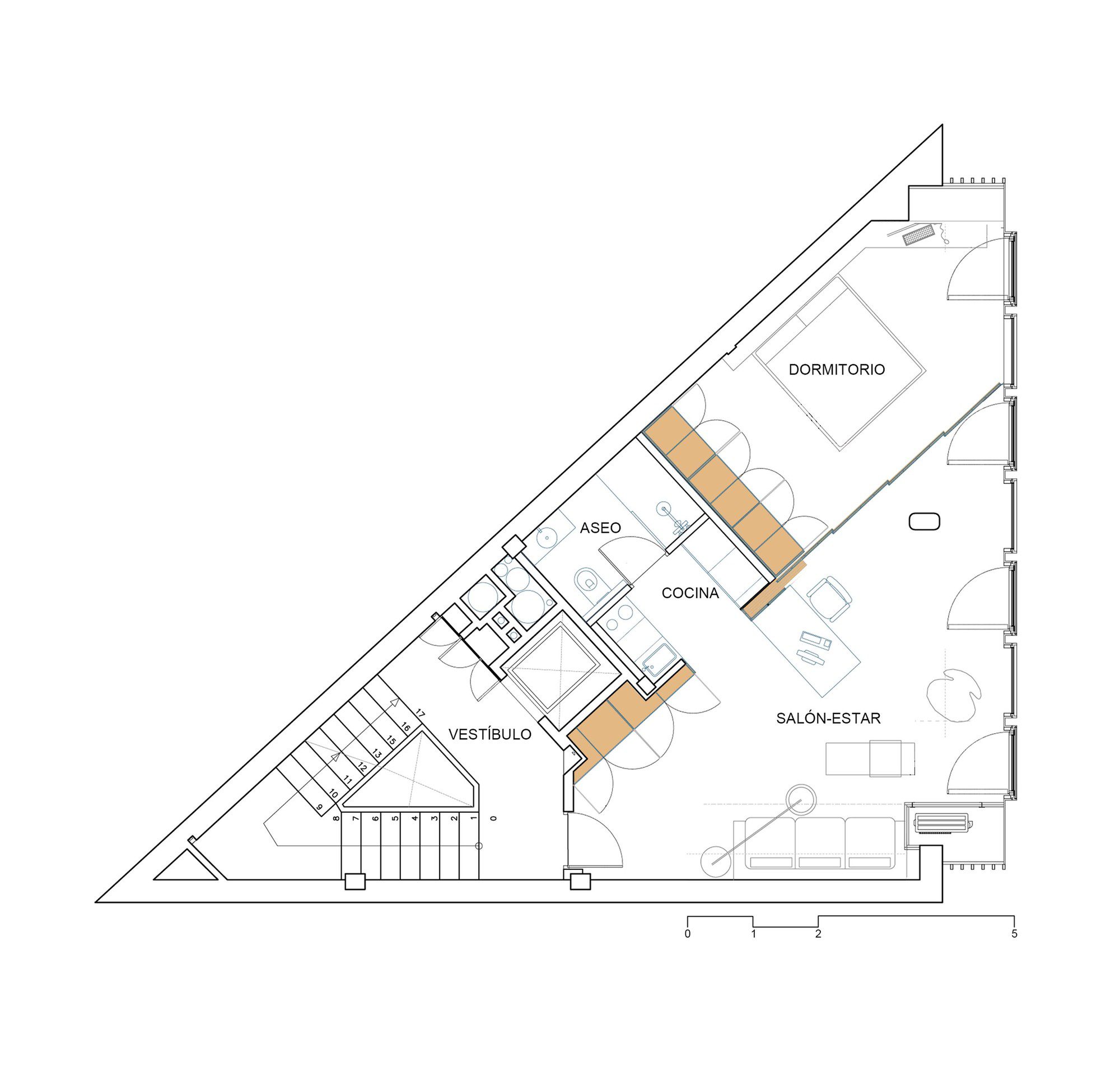
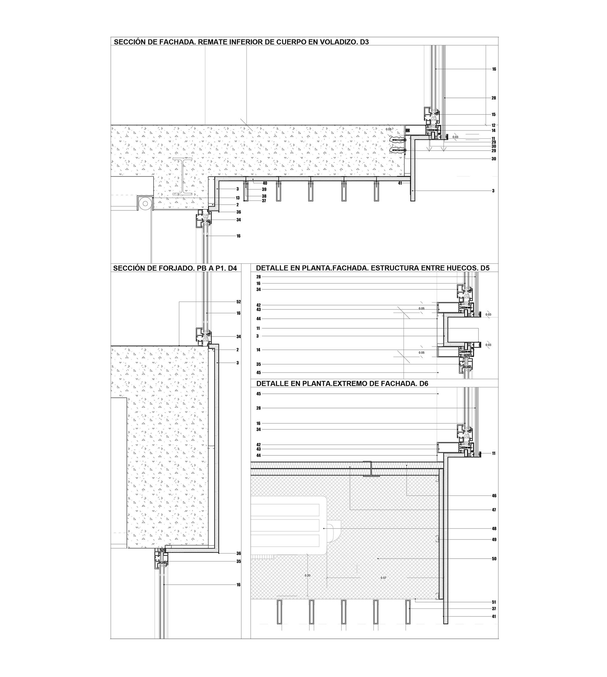
There are seven micro spaces for young people, configurable in studies with 1 or 2 bedrooms-offices. The 8 floors of the building have a perfect triangular plan, 76 m2 per floor, with natural light on one side and blind dividing walls (due to urban planning, buildings next to it will never match him in height) in the other two sides. The facade, which functions as a light collector with its funnel-shaped plan, has been completely replaced by intensifying the character of tertiary use the building had, intensified by its proportions and height dominating its immediate surroundings.
This character of the office building facade has been tried to bring inside. Office buildings developed decades ago enough mechanisms to promote the versatility required for its use. Unlike what happens in homes, spaces are often modular, so they can be zoomed in as needed, and ceilings and raised floors allow for changes in lighting and air conditioning facilities without the need for wet works and leftovers.
Unconventional materials for houses have been used, such as metal panels, polished concrete paving and wood chip recycled boards in walls, setting furniture and movable walls that allow great flexibility of space, thanks to sliding panels and mobile cabinet on wheels designed to be separate two spaces or making one.
Project Info
Architects: José María de Lapuerta, Paloma Campo
Country: Spain, Madrid
Area: 700 m²
Year: 2014
Photographs: Licinia Alberti
Quantity Surveyor: Oscar Gonzalez
Promoter: VELAPI
Project Leader: Jorge Romera, Fidel Luquero, Claudia Conde

















Madeline Brooks is a Projects Editor at Arch2O, where she has been shaping and refining architectural content since March 2024. With over a decade of experience in editorial work, she has curated, revised, and published an array of projects covering architecture, urbanism, and public space design. A graduate of the Harvard University Graduate School of Design, Madeline brings a strong academic foundation and a discerning editorial eye to each piece she oversees. Since joining Arch2O, she has played a pivotal role in shaping the platform’s editorial direction, with a focus on sustainability, social relevance, and cutting-edge design. Madeline excels at translating complex architectural ideas into clear, engaging stories that resonate with both industry professionals and general readers. She works closely with architects, designers, and global contributors to ensure every project is presented with clarity, depth, and compelling visual narrative. Her editorial leadership continues to elevate Arch2O’s role in global architectural dialogue.




