6 Housing Units in Paris | mobile architectural office
6 Housing Units in Paris, The site is located at the intersection of three characteristic Parisian urban situations not far from the Canal Saint-Martin: Rue Robert Blache, punctuated by small white rendered faubourien buildings with discreet mode nature, Rue du Terrage, largely occupied by a large HBM-type complex with neat brick facades and the operation around Place Raoul Follereau, an imposing housing complex, built in the early 1980s and marked by a reinterpretation of classical language, which can be described as postmodern.
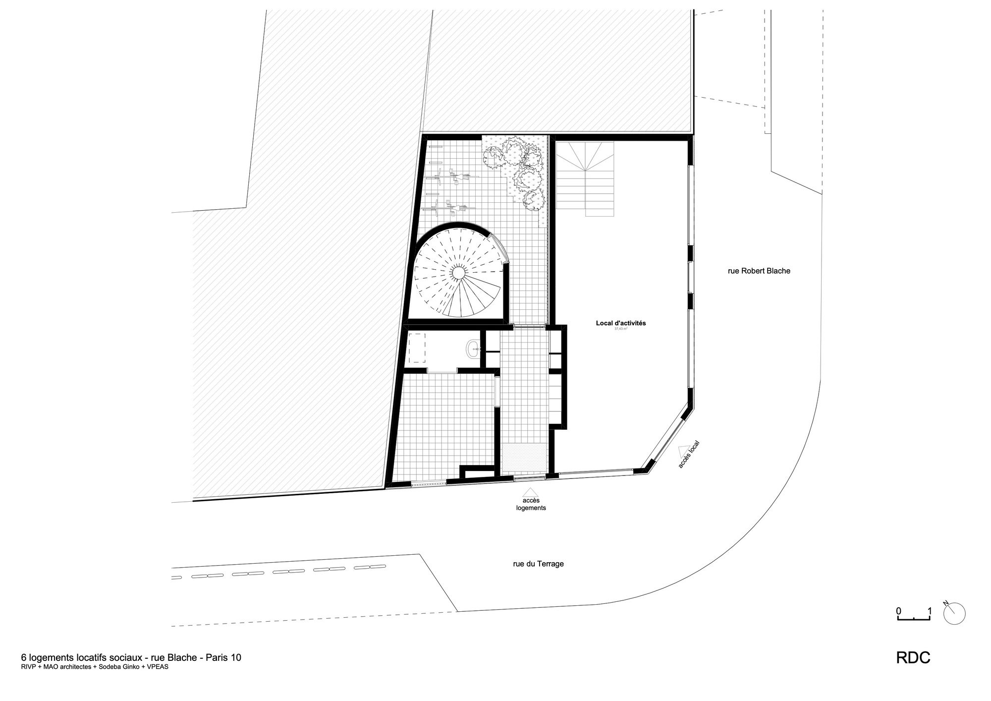
A Contextual Project. The building is located at the corner of rue Robert Blache and rue du Terrage.
The agency wished to reinterpret the codes of faubourienne architecture present in the rue Robert Blache: a compact volumetry between the courtyard and the street, a façade ordered by regular vertical openings, a discreet mode nature, simple expression of the building’s construction choices.
On the ground floor on rue Robert Blache, the agency has created a strong sense of animation by offering a maximum of retail space. Access to the flats is via a bright, walk-through hall overlooking Rue du Terrage. On the upper floors, all the dwellings are double or triple-oriented and have large windows offering maximum light to the inhabitants.
On the street side, the building has a matt white ribbed metal skin. The joinery is made of wood in natural colors and the railings are made of glass, offering luminosity and privacy to the flats. On the courtyard side, the facade is clad in the natural-colored wood cladding.
An ecological wood project. The building develops a structural principle based on prefabricated wood, with solid facades and floors (from the Basque Country). This principle has allowed the development of a very low-carbon site and the assembly of the structure on 5 levels in 10 days. Cross-laminated timber panels placed on the facades and partitions support cross-laminated timber panel floors. The structure can be seen inside the dwellings with some structural elements visible. The insulation of the whole building is provided by wood fiber. The floor comprises vegetal fibers (linoleum) or tiles (common corridors and wet rooms). In order to facilitate the large spans in the commercial premise and the relationship with the ground, the structure of the ground floor is made of concrete.
A low-load project. The program develops 6 dwellings including two triplexes on the ground floor (R+3-4-5). This configuration has made it possible to serve the 5-story building only by means of a staircase and external landings, thus limiting the costs of a possible lift. All of the technical equipment is managed by a dwelling (ventilation and individual boiler) in an envelope with very high thermal resistance. Rainwater is collected on the roof (R+5 in zinc) and feeds the planter above the bicycle room and the green space on the ground floor. A recovery system in the tank supplies the taps in the common areas (maintenance, watering) and all the sanitary facilities.
Project Info
Architects: mobile architectural office
Country: France, Paris
Area: 318 m²
Year: 2022
Photographs: Cyrille Lallement, Courtesy of mobile architectural office
Founding Architect: Fabien Brissaud
Architect: Aurélien Ferry
Project Owner: RIVP
Economist: VPEAS






































Sophie Tremblay is a Montreal-based architectural editor and designer with a focus on sustainable urban development. A McGill University architecture graduate, she began her career in adaptive reuse, blending modern design with historical structures. As a Project Editor at Arch2O, she curates stories that connect traditional practice with forward-thinking design. Her writing highlights architecture's role in community engagement and social impact. Sophie has contributed to Canadian Architect and continues to collaborate with local studios on community-driven projects throughout Quebec, maintaining a hands-on approach that informs both her design sensibility and editorial perspective.

