50 Modular Timber Apartments | PPA architectures
50 Modular Timber Apartments, Building housing for the disadvantaged population of the northern districts of Toulouse (one of the most dynamic areas of the conurbation) is – as part of ADOMA’s insertion mission – a modest yet active contribution to the development of a more generous and mixed city.
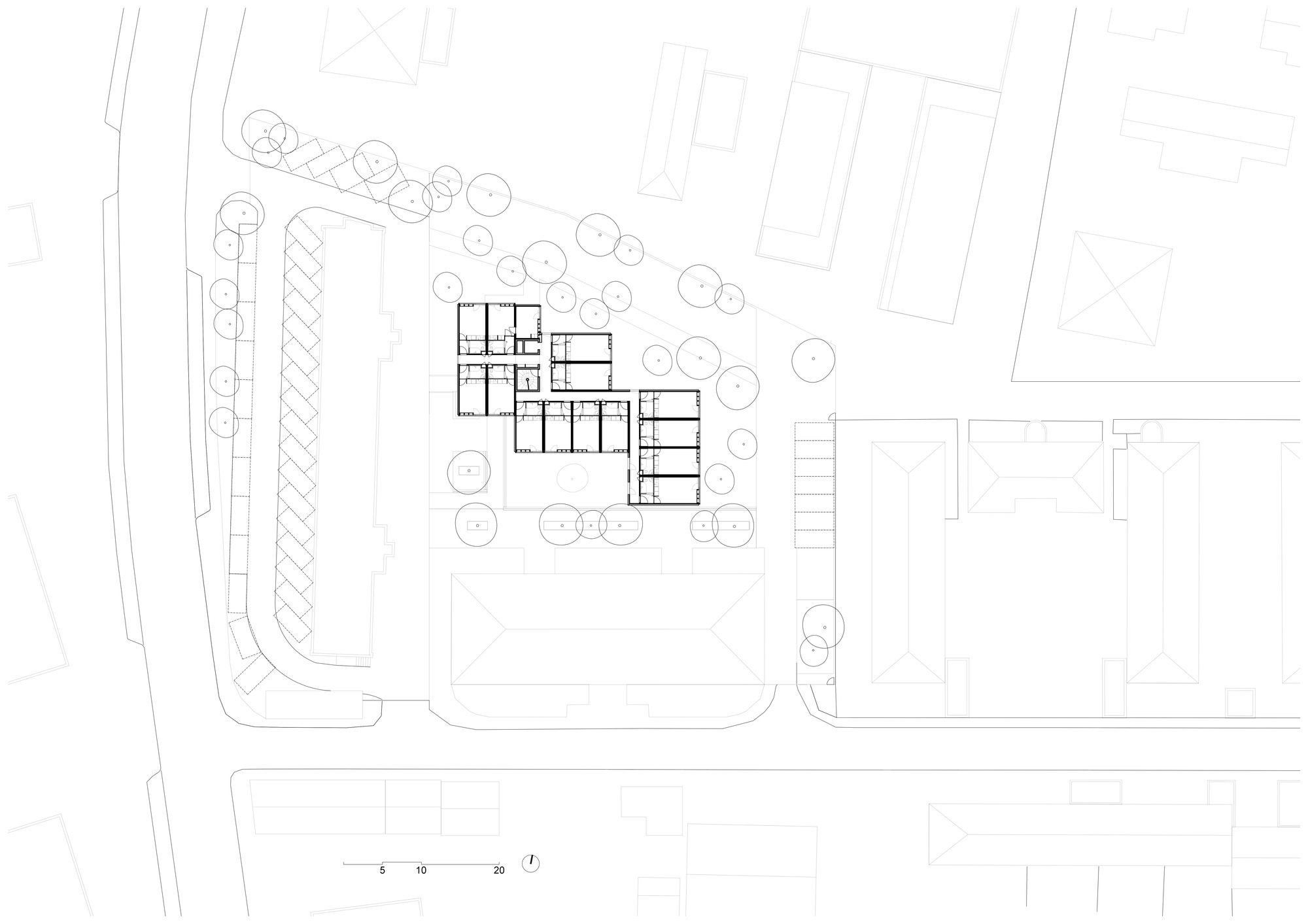
The new construction project on the west portion of the ADOMA site necessitated a profound questioning of its organisation, including a change in the balance between built and unbuilt areas to the detriment of the latter, and consequently to the quality of use by residents.
One could indeed fear, given the size and the current configuration of the Place des Papyrus, the overall direction of the site and the technical constraints imposed by the construction of timber modules, that many homes would be facing north and overlook -or be overlooked by- existing buildings.
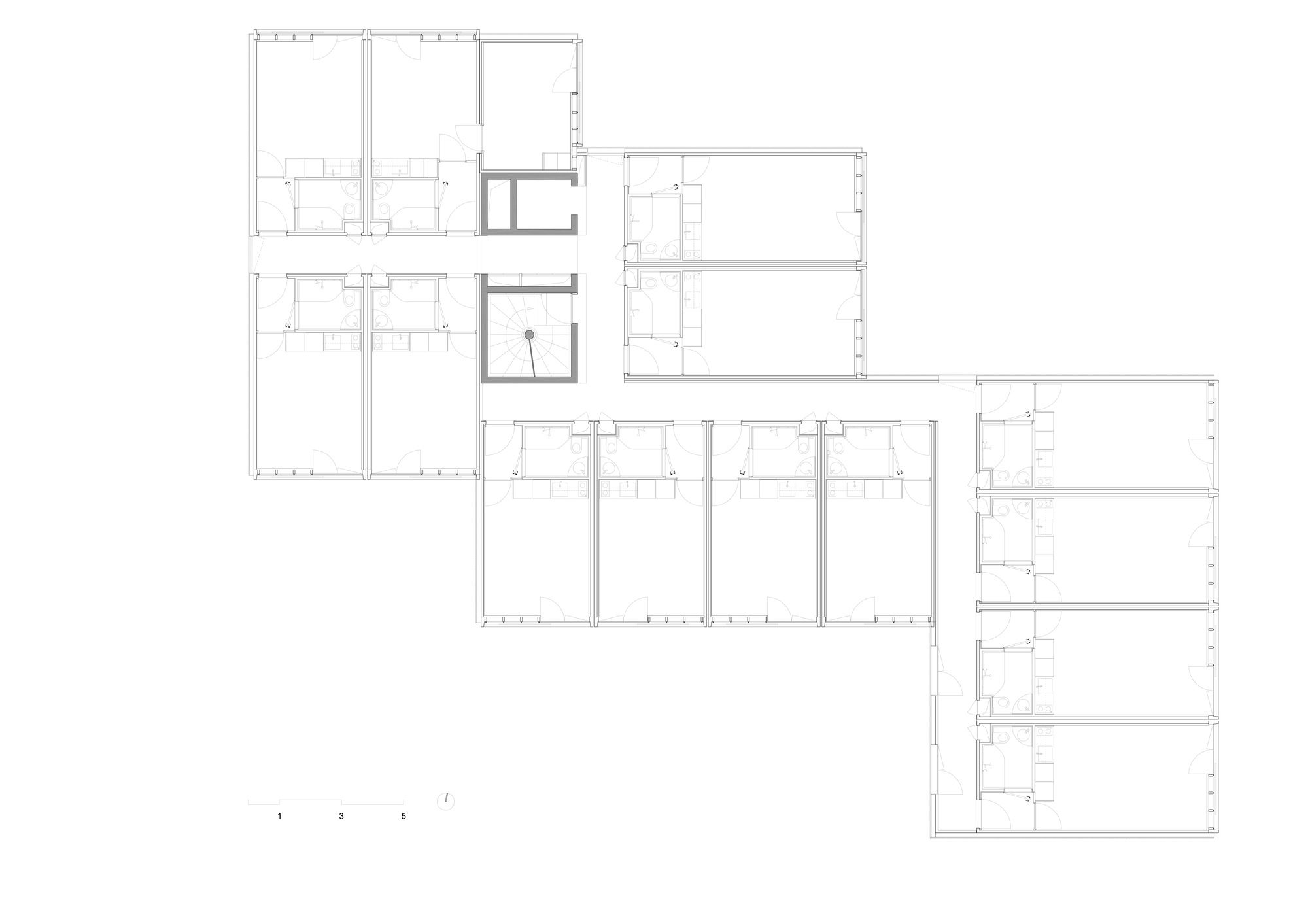
Aware of these constraints and aiming to make the new building «acceptable» in an urban way for existing residents and as comfortable as possible for its future residents, we suggested the chosen timber modular construction system which would achieve the following objectives:
This results in a synthesis, as part of the architectural and technical project, between the inherent ef ciency of the repetitive, dense and «stackable» aspect of a modular building and the contextuality that is essential to the new building’s quality of use and «integration».
These differing objectives are successfully and closely intertwined in this project.
Project Info
Architects: PPA architectures
Country: France, Toulouse
Area: 1500 m²
Year: 2015
Photographs: Philippe Ruault
Collaborator: Alonso Marquez Medina
BAST: aurent Didier
Landscape Designer: Emma Blanc
Cost Control: Execo
Thermo & Fluid Eng: Ceercé
Sps Control: DEKRA
TIC: Veritas
Wood Prefabricated Panels: Woodeum (CLT)
Framework: Technal
Low Carbone Pilot Building: Association Low Carbone Building
Design Time: 8 months
Building Time: 9 months
Costs: 2.4 M€ (design/building, including Roads and Utility Services)
Partner: Guillaume Pujol
Client: Adoma
Fluids Engineer: Ceercé











































Isabelle Laurent is a Built Projects Editor at Arch2O, recognized for her editorial insight and passion for contemporary architecture. She holds a Master’s in Architectural Theory from École Nationale Supérieure d’Architecture de Paris-Belleville. Before joining Arch2O in 2016, she worked in a Paris-based architectural office and taught as a faculty adjunct at the École Spéciale d’Architecture in Paris. Isabelle focuses on curating projects around sustainability, adaptive reuse, and urban resilience. With a background in design and communication, she brings clarity to complex ideas and plays a key role in shaping Arch2O’s editorial






