19 Collective Housing Units | Atelier 56S

19 Collective Housing Units, The architectural style of the Alsace-Lorraine district, rebuilt after the war, is characteristic of what is called classical modernity; it is based on a symmetrical composition with gabled roofs, vertical openings, and decorative moldings.

© Charly Broyez1

© Charly Broyez

The challenge of the new contemporary layer is to successfully reconcile this scale and vocabulary with that of the Banque de France building, monumental in character, located to the west of the block.

© Charly Broyez2

© Charly Broyez

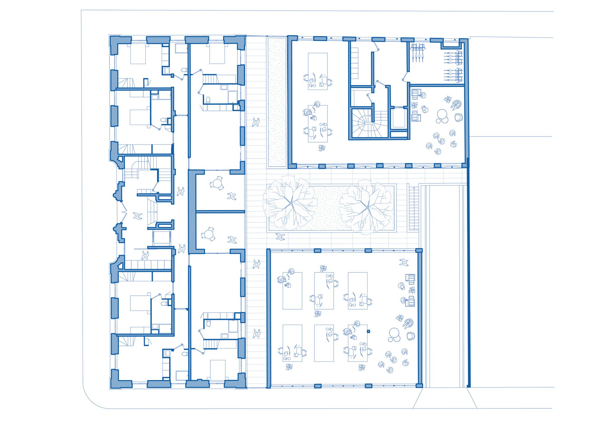
In the interest of urban coherence and to preserve sunlight quality, the project’s volumes adapt to the adjoining buildings. A five-story volume along Rue Clisson and a second, ground-floor volume along Rue Vaubanet create a gap with the rehabilitated Banque de France. The massing of the new buildings thus clarifies the fragmented existing block to create a coherent urban ensemble and free up a landscaped courtyard at the center.

© Charly Broyez3

© Charly Broyez

The two new constructions form a new layer between Place Alsace-Lorraine and Rue du Couëdic. The gap between the Banque and the new constructions introduces a public character while highlighting the institutional building. The unity and arrangement of the whole are thereby clarified, reinforcing the distinctiveness and quality of this part of the city of Lorient.

Axonometry Apartment Type 24

© Charly Broyez

The setback of the top floor, as well as the rhythm and size of the windows, create unified façades that harmoniously integrate the new building into its context. This generosity is accompanied by an optimal design for all through-apartments, each benefitting from a double or triple orientation and an outdoor space connected to the living room facing south.

© Charly Broyez5

© Charly Broyez

The project blends with its mineral environment, with concrete elevations simply given a light wash to keep the material visible.

Project Info
Architects: Atelier 56S
Country: France, Lorient
Area: 2086 m²
Year: 2025
Photographs: Charly Broyez
Manufacturers Saint-Gobain, Belle Epoque, Casamance, LedsC4, Norlys, Sapa: Saint-Gobain
Design Team: Atelier 56S
Client: Qualitym
Economy: CdLP
Structure: Ouest Structure
Thermal And Fluids: Solab
Asbestos Removal: ADS85
Demolition: Kerleroux
Earthworks Structural Work: Angevin
Renovation: Jaffre
Woodworks: CMBS
Metal Frame: Lobligeois
Roofing: 45Ouest
Waterproofing: Bretagne Etancheite
Windows: Realu
Smithing: Lobligeois
Automatic Doors: Fermatic
Carpentry: CMBS
Insulation Ceilings: Rault
Floors Tiles And Wood Floors: Dupuy
Painting Wall Covering: LMI / TSL
Plumbing, Heating And Ventilation: FCE
Electricity: Allanic
Elevator: Orona
Landscape: ID Verde
Cleaning: Richard Nettoyage

Atelier 56S
Arch2O.com
Logo