18-07 Holiday Home, Built without leveling the land, this hillside residence redefines what it means to build with, rather than on, the landscape.
On Norway’s dramatic western coast, a new private residence by OFFICE INAINN completes a quiet yet striking conversation between architecture and nature. Designed in close collaboration with the client and completed in April 2025, the home is perched high above a fjord on a steep, rocky slope, where building is always a negotiation with the terrain. Rather than imposing on the site, the project responds to it through subtle form, local materials, and a guiding principle: to let the landscape lead the way.
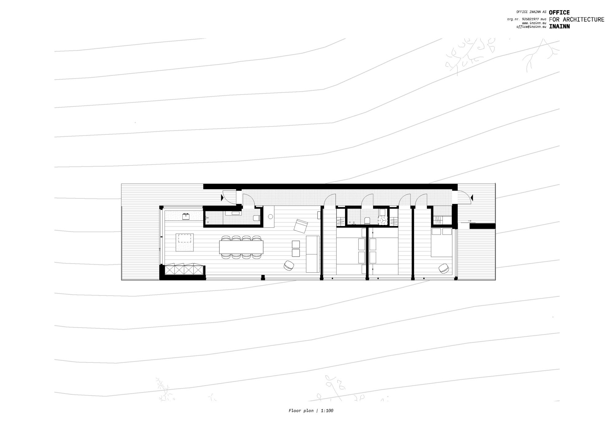
Designing with the Land – From the start, the team chose not to level the steep, rocky terrain, preserving its character instead of reshaping it. This decision defined the entire project. Two subtly shifted volumes follow the slope, creating natural variations in height, guiding light, and eliminating the need for added walls. Rooms emerge from the geometry itself, forming a structure that feels grown rather than built.
Movement Through the Landscape – Visitors approach the house along a narrow path between rock and building, a movement that continues inside as a tall, linear corridor. It’s a gentle transition from wild landscape to warm interior. Light filters in through wooden walls that reflect the changing tones of the coast, until finally the view opens wide to the fjord. Each room frames this view differently, responding to trees, terrain, and shifting light.
Materials and Atmosphere – Materials were locally sourced or chosen to feel native to the site, simple, tactile, and quiet. Their purpose: to enhance the atmosphere, not distract from it. “We didn’t want to add to the landscape,” says Maksymilian. “We wanted to continue it.”
A Collaboration Guided by Place – The home was shaped through close collaboration with a client deeply connected to the region. The brief was simple: let nature lead, and that idea touched every decision from structure to detail.
Project Info
Architects: OFFICE INAINN
Country: Norway
Area: 127 m²
Year: 2025
Photographs: ONI Studio
Lead Team: Maksymilian Sawicki
Design Team: Hanna Helena Sawicka, Åshild Sævik
Engineering & Consulting > Structural: Norconsult, Hunton
Landscape Architecture: OFFICE INAINN





































Isabelle Laurent is a Built Projects Editor at Arch2O, recognized for her editorial insight and passion for contemporary architecture. She holds a Master’s in Architectural Theory from École Nationale Supérieure d’Architecture de Paris-Belleville. Before joining Arch2O in 2016, she worked in a Paris-based architectural office and taught as a faculty adjunct at the École Spéciale d’Architecture in Paris. Isabelle focuses on curating projects around sustainability, adaptive reuse, and urban resilience. With a background in design and communication, she brings clarity to complex ideas and plays a key role in shaping Arch2O’s editorial






