Black Swan | Basma Khlaif, Reham Adi, Dareen Alloun.
It is hard-to-predict the rare events that are beyond the realm of normal expectations. The rise of the Internet, the personal computer and World War as examples of black swan events.
According to the large magnitude and consequence and their dominant role in formulating the users’ identity, our mission is “Identity Reformulation”
IN MYTHOLOGY:
Purgatory (Final purification) An intermediate state after the physical death to achieve the holiness necessary to enter the joy of heaven.
Architecture Theory:
Constructivism Vs. Deconstructivism Contradictory condition
APPROACH:
We are going to give you half of the story, find yourself in it, acted and directed by you. Creating a paradox where you visualize the unseen reality, take a trace of your identity, heal yourself and form your identity and eventually enter the CATHARESIS and then start again in the physical world.
“The only way of discovering the limits of the possible is to venture a little way past them into the impossible.”…… (*this leads to Space violating bodies by Bernard Tschumi)*
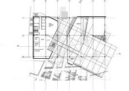
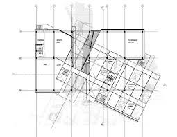
SPACE VIOLATING BODIES:
The violence inflicted by narrow corridors on large crowds, the symbolic or physical violence of buildings on users. The place your body inhabits is inscribed in your imagination, your unconscious, as a space of possible bliss.
Project Credits :
Project Name: Black Swan
Students: Basma Khlaif,Reham Adi,Dareen Alloun.
School: University Of Jordan, Faculty Of Engineering, Department Of Architectural Engineering.
Technology and innovation center: graduation project.
Supervised : Dr. Saleem dahabreh.
Arch2o has received this project from our readers in order to participate in the Students week 7 event, you may submit your own work for publication in the Students Week 8 by sending it to igraduate(at)arch2o.com














Maiar Mansour is an editor at Arch2O with a unique lens shaped by her background in architecture, visual arts, and human-centered design. A graduate of the Faculty of Fine Arts, Maiar discovered her passion for UI/UX through civil society work, storytelling workshops, and freelance design for arts events. Her editorial approach blends emotional intelligence with a strong visual sensibility, guided by a belief in storytelling and design coherence. With training from ITI and Udacity and hands-on experience as a UI/UX designer, she brings fresh perspectives on how environments shape human behavior, emotion, and interaction in design.




