Collaborative Life Sciences Building & Skourtes Tower | CO Architects

As Design Architects and Interior Designers, CO Architects worked closely with Executive Architect SERA Architects to create the design for the Collaborative Life Sciences Building (CLSB), which embodies and helps achieve the goals of an interdisciplinary, multi-institutional campus.  The building’s 12-story complex features 500,000 square feet of space for classrooms, lecture halls, and laboratories for research and teaching, including medical simulation laboratories for high-tech, team-based learning.  The facility is conceived as an innovative model of interdisciplinary health sciences education and research, engaging students, faculty, and pedestrians through a concept of “health science on display.”  The project has received LEED Platinum certification, and was named one of the 2015 Top Ten Green buildings by the American Institute of Architects’ Committee on the Environment.

Collaborative Life Sciences Building

© Jeremy Bitterman

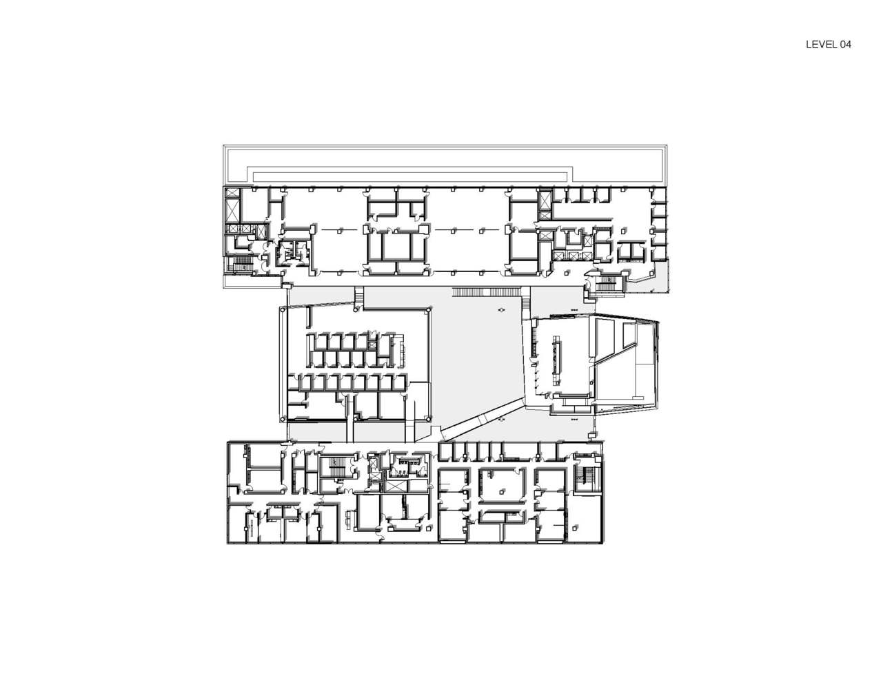
CLSB, clad in steel and glass, comprises three great volumes; the five-story south wing, connecting glass atrium, and the 12-story Skourtes Tower.  The tower contains teaching, medical research, and science labs, mechanical spaces, offices, and a dental school on top.  The south wing houses a leading-edge medical simulation suite for teaching, as well as administrative offices and classrooms.

Collaborative Life Sciences Building

© Jeremy Bitterman

A dividable lecture hall is lifted above the ground floor by column and brace supports.  Clad in wood-textured panels, the lecture box differentiates itself from the glass building.  A 400-seat lecture hall, a 200-seat lecture space, and a library can be seen through this volume looking into the atrium.  The student lounge on the top of the box offers an indoor-outdoor space central to the daily life of the building.

Collaborative Life Sciences Building

© Jeremy Bitterman

Daylighting is a driving concept of the overall design.  Support spaces are moved to the center of the floor plan and interlaced with the lab areas, exposing broad expanses of space to daylight.  Office spaces are on the east side of the tower, adjacent to the labs, with a glazed, connecting staircase leading, at every-other floor, to communal spaces for conferences or lounges with views of the river and landscape.  The building’s dental school is located on the top four floors of the tower.
Increased focus on patient safety, team-based learning, and technology-integrated clinical care emphasizes simulation as an essential part of a high-quality medical education.  The fourth-floor center, equipped with state-of-the-art technology, is flexible, open and expansive, accommodating collaborative, clinical team training across disciplines and exemplifying the collaborative nature of the entire school.

Collaborative Life Sciences Building

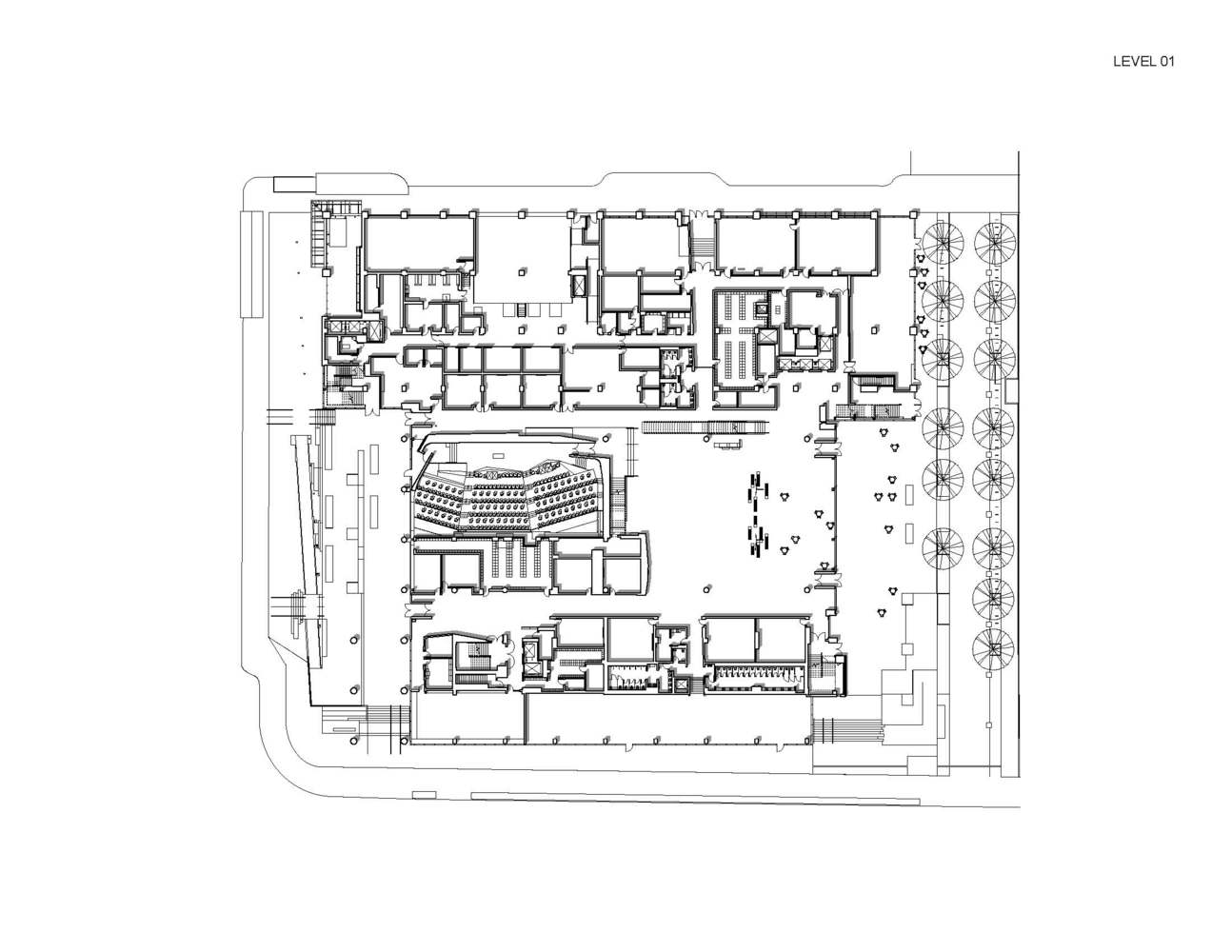
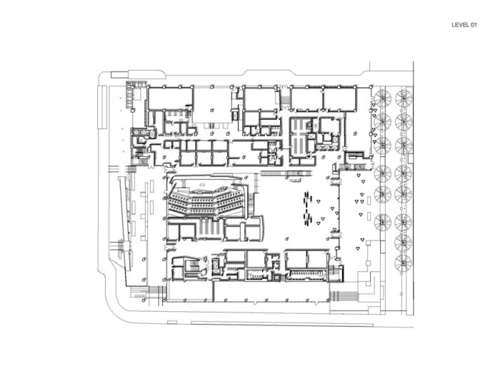
Level 1 Plan

CLSB’s interiors are program driven, using basic materials of polished concrete, drywall, and wood.  Laboratory areas have maple benches and epoxy countertops, which reflect light, underscoring the daylighting effect.  Bright white abounds on interior walls, with a fresh color scheme of lime green, tropical blue, sunny yellow, and vivid red lining staircases.

Collaborative Life Sciences Building

© Jeremy Bitterman

The architect worked with the client and other stakeholders to bring two colorful, bold installations by Los Angeles-based artists.  A provocative piece by Pae White uses LED tubes to cast light in a spectrum of colors across atrium soffits.  Christian Moeller’s 40-foot-high outdoor sculpture reflects science and medicine with enormous red fiberglass spheres conjuring molecular structures.

Project Info:

  • Architects: CO Architects
  • Country: PortlandUnited States
  • Area: 60386 m²
  • Year: 2014
  • Manufacturers:  TremcoDeaMor
  • Dry Mechanical Contractors: Temp Control
  • Mechanical Engineer: Interface Engineering
  • Structural Engineer: KPFF Consulting Engineers
  • Electrical Engineer: Interface Engineering
  • Construction Manager: JE Dunn Construction
  • Wet Mechanical Contractors: JH Kelly
  • Electrical Contractors: Oregon Electric Group
CO Architects
Arch2O.com
Logo
Send this to a friend